Астрахань, улица Латышева, 16 стр
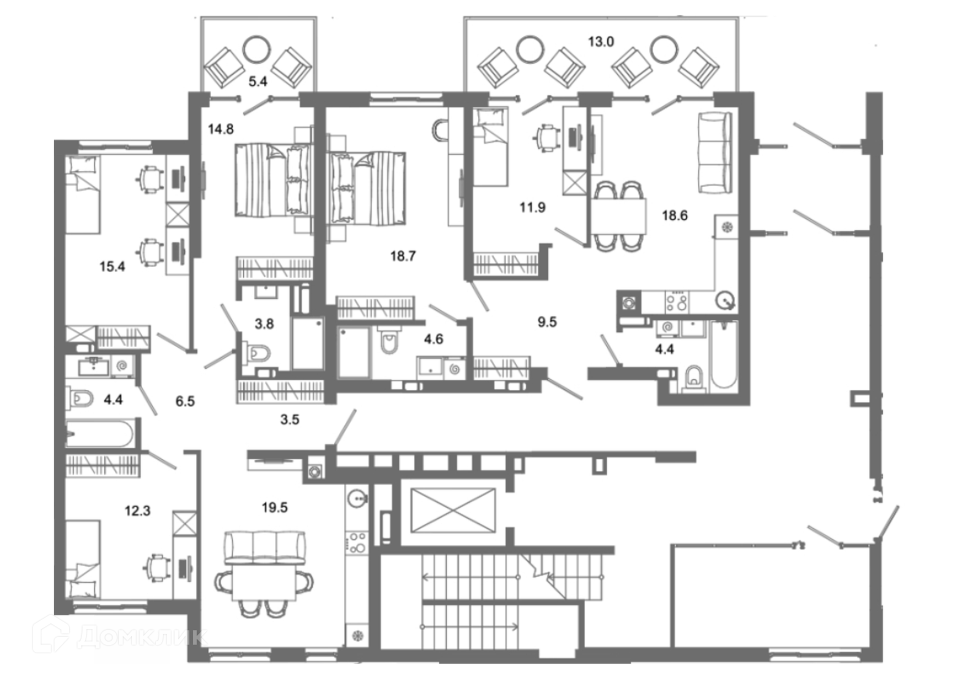
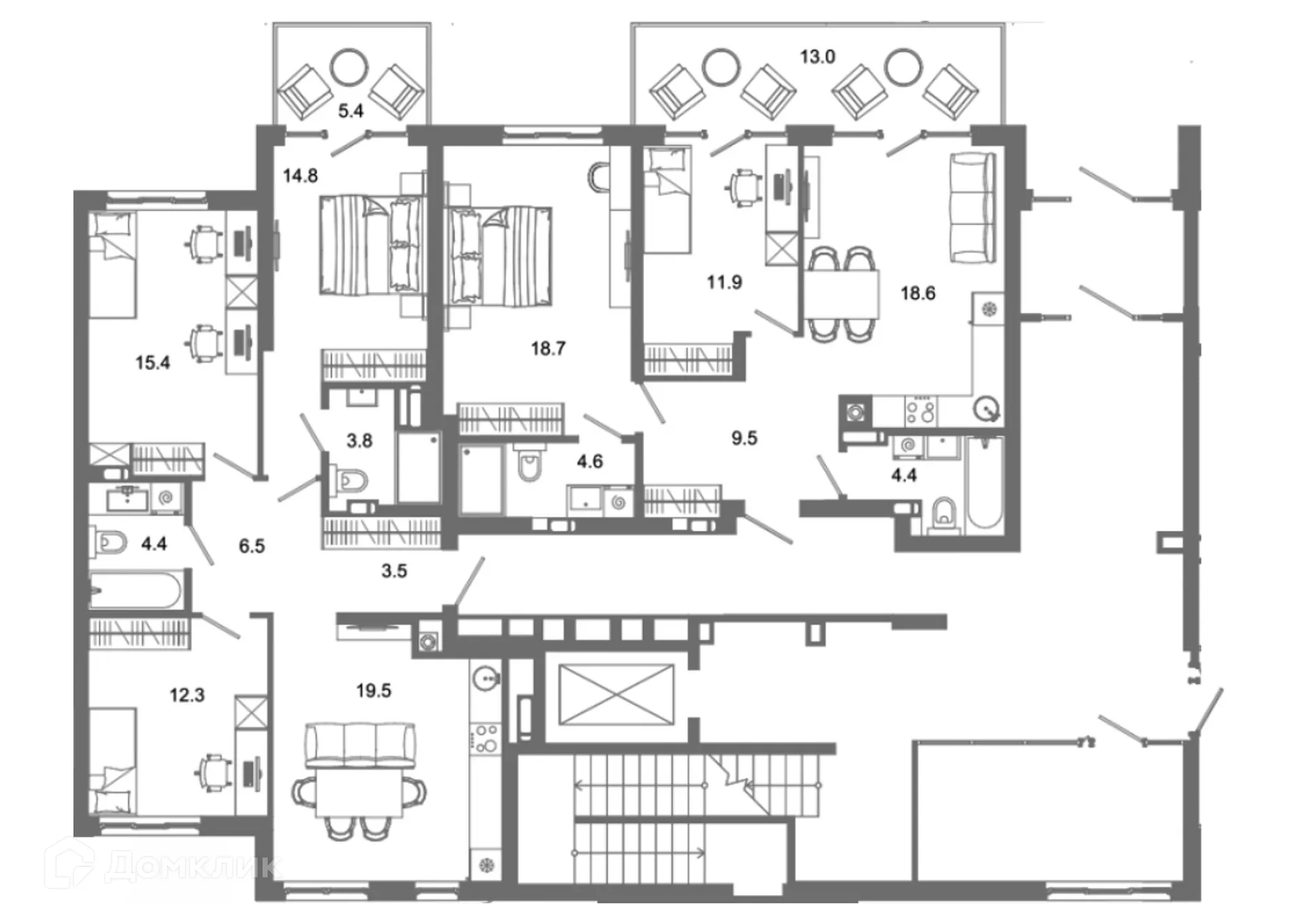
Площадь
Жилая
Кухня
Отделка
Класс жилья
Комнат
Номер кв.
Этаж
Доступна к покупке 2-комнатная квартира в современном жилом комплексе "ЖК Жилой район Зеленые кварталы" 🏢. Квартира расположена на 1-м этаже 26-этажного дома. Отличный вариант для инвестиций.
Для бесплатного бронирования и проверить актуальную стоимость — свяжитесь с нами прямо сейчас! 📞
«Зеленые кварталы» — первый жилой район от компании «РАЗУМ», создателя «Сердце Каспия» и «НАСЛЕДИЕ» в Астрахани, состоящий из пяти зелёных кварталов, объединенных общим бульваром. Жилой район расположен в центре университетской жизни Астрахани. Рядом находятся детские сады, школы, Центральный стадион, досуговые и развивающие центры и большая прогулочная зона вдоль Комсомольской набережной. Общая площадь благоустройства проекта — 7 гектаров. Главная особенность проекта — переменная этажность домов от 8 до 25 этажей. Жасминовый квартал — территория изысканности с 2 уровнями благоустройства территории. Первый уровень — свой двор-парк. Это благоустроенная придомовая территория с дендропарком, в котором деревья и кустарники высажены с учетом всех четырех сезонов. Второй уровень — просторный бульвар протяженностью 270 м, объединяющий все кварталы в единой целое. «Зеленые кварталы» — это - территория без машин; - безбарьерная среда; - единый экостиль в оформлении дворовых пространств в соответствии с названием квартала; - 24 тематические зоны на бульваре: пространства для отдыха и релакса с гамаками и шезлонгами, центральная площадь с амфитеатром и контактным фонтаном, 2 зоны work-out, детские игровые площадки, разделенные по возрастам, тарзанка, водные и скалолазные конструкции, песочницы, батуты; - велодорожка длиной 1200 м, проходящая через весь жилой район и ПЕРВОЕ в Астрахани велокафе; - детский сад на 125 мест на территории района и рассчитан 5 групп разного возраста; - площадка для выгула собак; - многоуровневое освещение и подсветка фасадов; - видеонаблюдение; - эстетичные подъездные холлы со сквозными подъездами и комфортной зоной ожидания. В проекте представлены 107 планировочных решений: от уютных студий 31,1 м² до квартир с тремя спальнями и кухней-гостиной 128 м² с функциональным разделением на гостевую и приватные зоны. Для воплощения самых смелых дизайнерских решений есть эксклюзивные квартиры с собственной террасой от 6 м² до 34 м².
Срок сдачи: 4 кв. 2025 г.
Срок сдачи: 4 кв. 2025 г.
Площади квартир
Этажность
Класс жилья
Корпусов
Стены